SUOSITULLA KALAHOLMAN ALUEELLA, PÄÄTTYVÄN TIEN VARRELLA 1988 VALMISTUNUT HYVÄKUNTOINEN TALO.
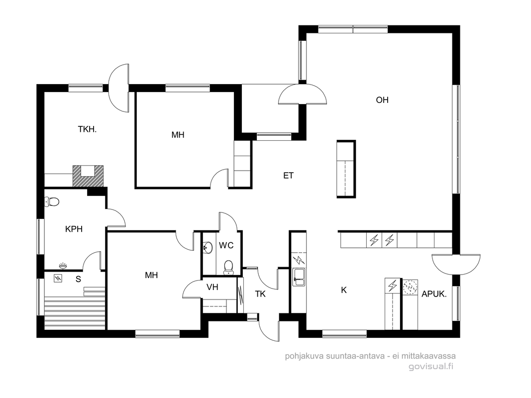
Talossa on kaksi makuuhuonetta, mahdollisuus kolmanteenkin on. Keittiössä on paljon kaappeja ja työtasoa ja hyvä tila ruokapöydälle sekä nurkan takana kodinhoitohuone.
Talon päädyssä on reilukokoinen kylpyhuone, vieressään muhevat löylyt tarjoava sähkölämmitteinen sauna. Kylpytilojen vieressä on varaavalla takalla varustettu takkahuone.
Talossa on kaksi makuuhuonetta, joista toisen yhteydessä vaatehuone, toisessa kaapistoa.
Isosta olohuoneesta käynti piha-alueelle.
Ison autotallin yhteydessä varasto. Idyllinen 16 m²:n pihamökki, jossa 2 idyllistä huonetta ja olotila. Lähde siis samaan pihapiiriin mökille ja nauti!
Kesän grillihetkiin tarjoaa oivan mahdollisuuden pihaan istutettu grillikatos. Rehevä, hoidettu pihapiiri. Uittopuistoon rajoittuva tontti.
Suositulla Kalaholman alueella, pienen pyrähdyksen päässä palveluista – kiva talo – olenko sinun uusi kotisi?
Kiinteistön esittelyä ja myyntiä hoitaa
Helena Alppi
040 591 8578
helena.alppi@aulalkv.fi
********************
OMA ASUNTO MYYMÄTTÄ? – MAKSUTON ARVIO ASUNNOSTASI VAIN KLIKKAUKSEN PÄÄSSÄ:
040 591 8578, helena.alppi@aulalkv.fi
Liity sinäkin tyytyväisten asiakkaiden ja onnellisten muuttojen joukkoon!
******************** 
Kohdetta myy

02110 ESPOOpaakaupunkiseutu@aulalkv.fi+358 400 814 169
Esittely
Perustiedot
Ankeriaantie 10
28300 Pori
Hinta ja kustannukset
Laskettu velattomasta myyntihinnasta.
Lisätiedot
Ikkunallinen, sähkölämmitteinen sauna, seinillä paneeli, laattalattia
Varaava takka takkahuoneessa
Lämmönjakotapa: sähköpatterilämmitys, sähköinen lattialämmitys, muu
Lattialämmitys kylpyhuoneessa
Asunnon tilat ja materiaalit
Tiiliverhous
Varusteet: jääkaappipakastin, astianpesukone
2 kpl
Varusteet: takka
takkahuoneessa varaava takka, maalatut seinät, lattiassa parketti
Makuuhuoneiden määrä: 2
Ison autotallin yhteydessä varasto
Katon pintamateriaali: Peltikate
Katto tarkastettu vuonna 2019
Asunnon tontti
550 €/v
Porin kaupunki
37m2
Talousrakennus
16m2, rakennuksessa 2 huonetta ja olotila
Muut rakennukset





















































