Vuonna 1915 rakennetun hissitalon 4/5 kerroksen hyväkuntoinen tehoyksiö. Sijainti sisäpihalla on rauhallinen vaikka tämä pikkukoti sijaitseekin aivan ydinkeskustassa.
Vuokrattu toistaiseksi 12.10.2025 alkaen 820 euroa/kk.
Myyntiä hoitaa Marko Sormunen p. 0400 814 169 tai marko.sormunen@aulalkv.fi 
Kohdetta myy

Aula LKV Elämäsi kotiin | Suomen Aula LKV Oy, PääkaupunkiseutuY-tunnus: 1846834-9Itäranta 7 B
02110 ESPOOpaakaupunkiseutu@aulalkv.fi+358 400 814 169
02110 ESPOOpaakaupunkiseutu@aulalkv.fi+358 400 814 169
Esittely
Kohteen seuraavaa esittelyajankohtaa ei ole tiedossa
Perustiedot
38899387
38899387
Runeberginkatu 6 b
00100 Helsinki
00100 Helsinki
Kerrostalo
Ei
Omistusasunto
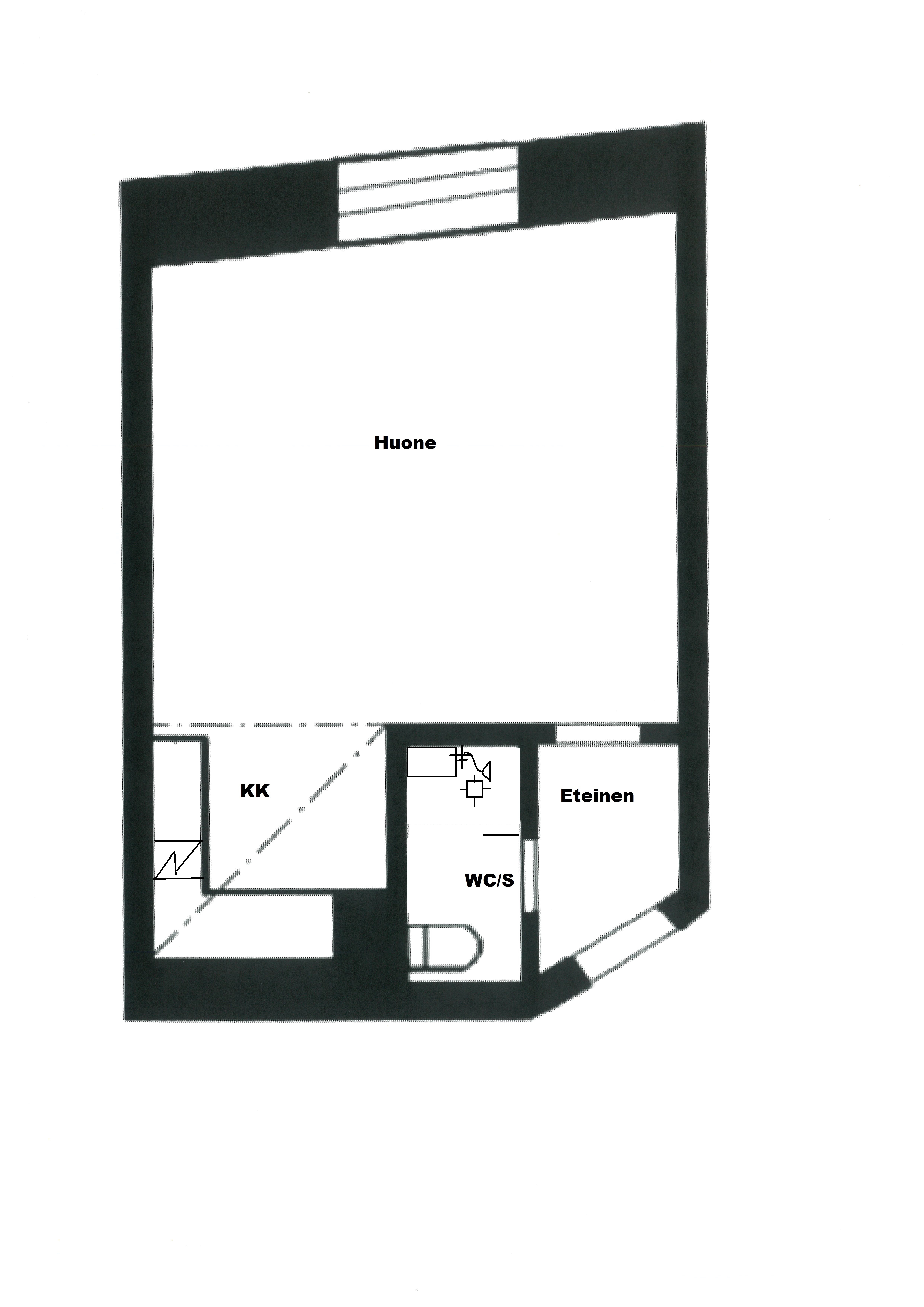
1h, kk, kph + parvi
1
21,50 m²
21,50 m²
Tarkistusmitattu
4/5
1
1915
1915
Hinta ja kustannukset
177 000 €
162 328,78 €
14 671,22 €
8 232,56 € / m²
Laskettu velattomasta myyntihinnasta.
Laskettu velattomasta myyntihinnasta.
273,60 € / kk
Hoitovastike 114 € / kk
Rahoitusvastike 159,60 € / kk
Hoitovastike 114 € / kk
Rahoitusvastike 159,60 € / kk
24 € / kk / hlö
Tietoliikenneyhteysmaksu: 2 €/kk
Lisätiedot
Kyllä
Ei
Hyvä
Maalattu lautalattia kaipaa hiomisen ja uuden pinnoitteen.
Kaukolämpö
Lämmönjakotapa: vesikiertoinen patterilämmitys
Lämmönjakotapa: vesikiertoinen patterilämmitys
Painovoimainen
Kaapeli-TV
Asunnon tilat ja materiaalit
Pääasiallinen rakennusmateriaali: Tiili
Tiili + betoni
Tiili + betoni
Induktioliesitaso, kalusteuuni, jääkaappi, astianpesukone, mikroaaltouuni, kiinteät valaisimet. Lautalattia, seinät ja katto maalattu..
Lautalattia, seinät ja katto maalattu, kaapisto.
Suihku, allas, peili, wc-istuin. Laatoitettu, katto maalattu
Parvi: Parvi keittokomeron yläpuolella.
Katto: Harjakatto
Katon pintamateriaali: Peltikate
Katon pintamateriaali: Peltikate
Taloyhtiö
Asunto Oy Helsingin Runeberginkatu 6 b
Vinttikomero, talopesula
Taloyhtiössä sauna
58
6
410,50 m²
Esteettömät kulkuväylät, jätepiste, oleskelualueet, kasvillisuus
2024 Kuntoarvion laadinta, Pihakannen ja kellarin hanke- suunnittelu, käynnissä. 2023 Porrashuoneiden ulko-ovien kunnostus ja lakkaus. 2022 Tuuletusparvekkeiden ikkunoi-den ja ovien maalauskorjaukset. 2020 –2022 Linjasaneeraus
2015 Pohjaviemärin uusinta. 2013 Hissien rakentaminen A-, B- ja C-portaisiin. 2008 Kaukolämpölaitteiston uusiminen
2000 Pihajulkisivujen saneeraus. 2000 Kolmen huoneiston laajennus ullakolle. 1997 –2000 Vesikatteen uusiminen
1997 Pihan viihtyvyyteen liittyvät toimet. 1997 Katujulki-sivujen saneeraus. 1985 Pihakannen peruskorjaus. 1980 Porrashuoneiden entisöintikorjaukset. 1975 –1976 Ikkuna-remontti. 1970 Kadun puolen julkisivun maalaus. 1964 Put-kiremontti.
2015 Pohjaviemärin uusinta. 2013 Hissien rakentaminen A-, B- ja C-portaisiin. 2008 Kaukolämpölaitteiston uusiminen
2000 Pihajulkisivujen saneeraus. 2000 Kolmen huoneiston laajennus ullakolle. 1997 –2000 Vesikatteen uusiminen
1997 Pihan viihtyvyyteen liittyvät toimet. 1997 Katujulki-sivujen saneeraus. 1985 Pihakannen peruskorjaus. 1980 Porrashuoneiden entisöintikorjaukset. 1975 –1976 Ikkuna-remontti. 1970 Kadun puolen julkisivun maalaus. 1964 Put-kiremontti.
Pihakansiurakka: kellarivarastojen purkutyöt ja uudelleen rakentaminen tarvittavalta osalta, pihakannen ja kellarivarastojen hanke- ja toteutussuunnittelu, pyörävaraston rakentaminen kellariin, taloyhtiön omistamien liike- ja muiden tilojen peruskorjaus ja tason nosto, talosaunan ja talopesulan kunnostus.
Sara Salmenranta, Isännöitsijä, IAT, Aarre Isännöinti Oy
Puh 020 1986 700, 044 294 5877, sara.salmenranta@aarre.com
Puh 020 1986 700, 044 294 5877, sara.salmenranta@aarre.com
Huoltoyhtiö
G2013
Oma
Asemakaava













