Käytännöllinen omakotitalo Pietniemestä!
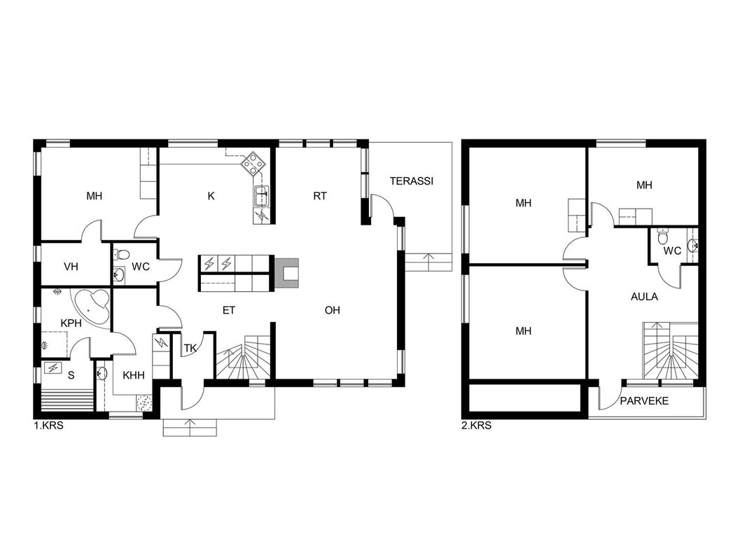
Nyt olisi tarjolla Pietniemen lintukodosta viihtyisä ja käytännöllinen kiinteistö. Alakerrasta löydät tilavan olohuoneen, jossa on varaava takka lämmittämässä talven kylminä iltoina. Viereisessä huoneessa on keittiö, jossa riittää tilaa valmistaa, vaikka neljän ruokalajin illallinen. Asunnossa on remontoitu kauttaaltaan kylpyhuone sekä sauna, jossa kyllä kelpaa ottaa kunnon löylyt. Kodinhoitohuoneessa käy helposti arjen askareet ja raskaan päivän jälkeen onkin sitten hyvä vetää itsensä pitkäksi alakerran makuuhuoneeseen.
Yläkerrassa on kolme tilavaa makuuhuonetta sekä wc, niin ei tarvitse ravata alakerran vessassa. Ilmalämpöpumppu pitää yläkerran viileänä kesäisin ja talvella lämpimänä. Yläkerrassa on myös kattolämmitys, mutta jäänyt vähemmälle käytölle.
Tontilta löytyy myös lämmitetty autotalli, johon mahtuu jopa kaksi autoa suojaan räntäkeleiltä ja silti jää vielä tilaa, vaikka pikku traktorille. Tallin yhteydessä on myös lämmitetty varasto ja autokatos. Eikä asfaltoidulle etupihallekaan ole paha jättää autoa.
Alue on mitä parhain perhe-elämiseen. Erittäin rauhallinen ja ei liian kaukana mistään. Koulut ja päiväkodit ovat pienen matkan päässä ja urheilumahdollisuuksiakin on riittämiin. Keskustaan on noin 10-15 minuutin ajomatka.
Kysy rohkeasti lisätietoja ja käydään katsomassa olisiko tässä teidän elämänne koti!
Kohteen myyntiä hoitaa:
Riku Kauppi
044 906 8628
riku.kauppi@aulalkv.fi 
Kohdetta myy

02110 ESPOOpaakaupunkiseutu@aulalkv.fi+358 400 814 169
Esittely
Perustiedot
Seljantie 32 a
28660 Pori
Hinta ja kustannukset
Laskettu velattomasta myyntihinnasta.
Lisätiedot
Ilmansuunta: pohjoinen
Varusteet: sähkökiuas, lattialämmitys
Seinien pintamateriaali: paneeli
Lattian pintamateriaali: laatta
Ilmansuunta: etelä, länsi
Lämmönjakotapa: ilmalämpöpumppu, sähköinen kattolämmitys, sähköinen lattialämmitys
Alakerrassa kauttaaltaan lattialämmitys.
Yläkerrassa kattolämmitys, mutta ei ole varmuutta toimivuudesta.(Ei ole ollut käytössä)
Asunnon tilat ja materiaalit
Seinien pintamateriaali: maalattu
Lattian pintamateriaali: laatta
Lattian pintamateriaali: laminaatti
Lattian pintamateriaali: laminaatti
Makuuhuone 2: Seinien pintamateriaali: tapetti
Lattian pintamateriaali: laminaatti
Makuuhuone 3: Seinien pintamateriaali: tapetti
Lattian pintamateriaali: laminaatti
Makuuhuone 4: Seinien pintamateriaali: tapetti
Lattian pintamateriaali: laminaatti
Makuuhuoneiden määrä: 4
Seinien pintamateriaali: kaakeli
Lattian pintamateriaali: laatta
Seinien pintamateriaali: kaakeli
Lattian pintamateriaali: laatta
WC-tila 2: Varusteet: lattiaan asennettu WC, allaskaappi, peili
Seinien pintamateriaali: kaakeli
Lattian pintamateriaali: laatta
Seinien pintamateriaali: kaakeli
Lattian pintamateriaali: laatta
Katon pintamateriaali: Tiilikate
Asunnon tontti
Kahden auton mahduttava lämmitettävä autolli, jonka yhteydessä varasto ja vieressä katos. Rakennettu vuonna 2007
Autotalli pinta-ala: 47,70 m²
Varasto pinta-ala: 14,70 m²
Katos 10,40 m²




































