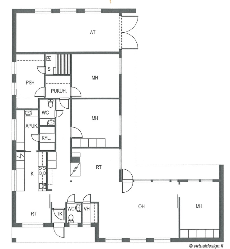
Rauhallisella alueella viihtyisä ja edullinen omakotitalo jossa on toimiva pohjaratkaisu ja tilaa isommallekin perheelle. Talosta löytyy kolme makuuhuonetta, tilava olohuone ja käytännöllinen keittiö sekä kaksi erillistä wc-tilaa. Sähkölämmitys, varaava takka/leivinuuni ja lisäksi lämmityksen tueksi on asennettu kaksi ilmalämpöpumppua.
Kylpyhuone laatoitettu vesieristyksineen ja käyttövesiputket muovilla suojaputkineen on uusittu, joten nämä suuret remontit on jo tehty valmiiksi. Pihapiirissä on iso ulkovarasto n. 45 m² sekä autotalli, jotka tarjoavat runsaasti säilytys- ja harrastetilaa.
Ota yhteyttä ja sovitaan sopiva esittelyaika!
Kiinteistön myyntiä ja esittelyjä hoitaa:
Tatu Kortelainen puh. 040 524 4057
tatu.kortelainen@aulalkv.fi 
Kohdetta myy

Tatu KortelainenLaillistettu kiinteistönvälittäjä, konttorinjohtajatatu.kortelainen@aulalkv.fi+358 40 524 4057
Aula LKV Elämäsi kotiin | Suomen Aula LKV Oy, PääkaupunkiseutuY-tunnus: 1846834-9Itäranta 7 B
02110 ESPOOpaakaupunkiseutu@aulalkv.fi+358 400 814 169
02110 ESPOOpaakaupunkiseutu@aulalkv.fi+358 400 814 169
Esittely
Kohteen seuraavaa esittelyajankohtaa ei ole tiedossa
Perustiedot
46631307
46631307
Kylätie 51
28800 Pori
28800 Pori
Omakotitalo
Ei
Omistusasunto
3mh, oh, k, s, kph, vh, 2 x, wc, khh, terassi, at
4
118 m²
167 m²
1972
Neuvoteltavissa
Hinta ja kustannukset
65 000 €
65 000 €
550,85 € / m²
Laskettu velattomasta myyntihinnasta.
Laskettu velattomasta myyntihinnasta.
267,29 € / v
Lisätiedot
Asunnossa on sauna
Varusteet: sähkökiuas
Varusteet: sähkökiuas
Kyllä
Varaava takka, leivinuuni
Ei luokiteltu
Käyttövesiputket muovilla suojaputkessa v. 1999, lämminvesivaraaja v.2021, kaikki lattiat olohuoneen takana olevaa makuuhuonetta lukuun ottamatta purettu pohjalaattaan asti ja uusittu v. 1999, sauna ja pesuhuone saneerattu v.1999
Sähkölämmitys, puulämmitys
Lämmönjakotapa: ilmalämpöpumppu, sähköpatterilämmitys, sähköinen lattialämmitys
2 x ilmalämpöpumppu, varaava takka/ leivinuuni
Lämmönjakotapa: ilmalämpöpumppu, sähköpatterilämmitys, sähköinen lattialämmitys
2 x ilmalämpöpumppu, varaava takka/ leivinuuni
Kunnan vesijohto
Kunnan
Painovoimainen
Antenni-TV
Asunnon tilat ja materiaalit
Pääasiallinen rakennusmateriaali: Puu
Varusteet: jääkaappi, astianpesukone, keraaminen liesi, liesituuletin hormilla
Varaava takka / leivinuuni, ilmalämpöpumppu
Laatoitettu, vesieristetty, lattialämmitys
Varusteet: suihku, lattialämmitys
Varusteet: suihku, lattialämmitys
2 erillistä wc:tä
Varusteet: pesukoneliitäntä, pöytätaso, pesuallas
Ulkovarasto
Kokonaisala n. 45 m²
Kokonaisala n. 45 m²
Katto: Pulpettikatto
Katon pintamateriaali: Huopakate
Katon pintamateriaali: Huopakate
Asunnon tontti
609-39-54-2
1 175 m²
Oma
Asemakaava
Varasto
Kokonaispinta-ala n. 45 m²
Kokonaispinta-ala n. 45 m²
Muut lisätiedot
Sähköliittymä, vesiliittymä, viemäriliittymä
2 x ilmalämpöpumppu, lämminvesivaraaja























