Hyvällä paikalla, rauhallisella Toejoen alueella hyvän kokoinen omakotitalo edullisesti!
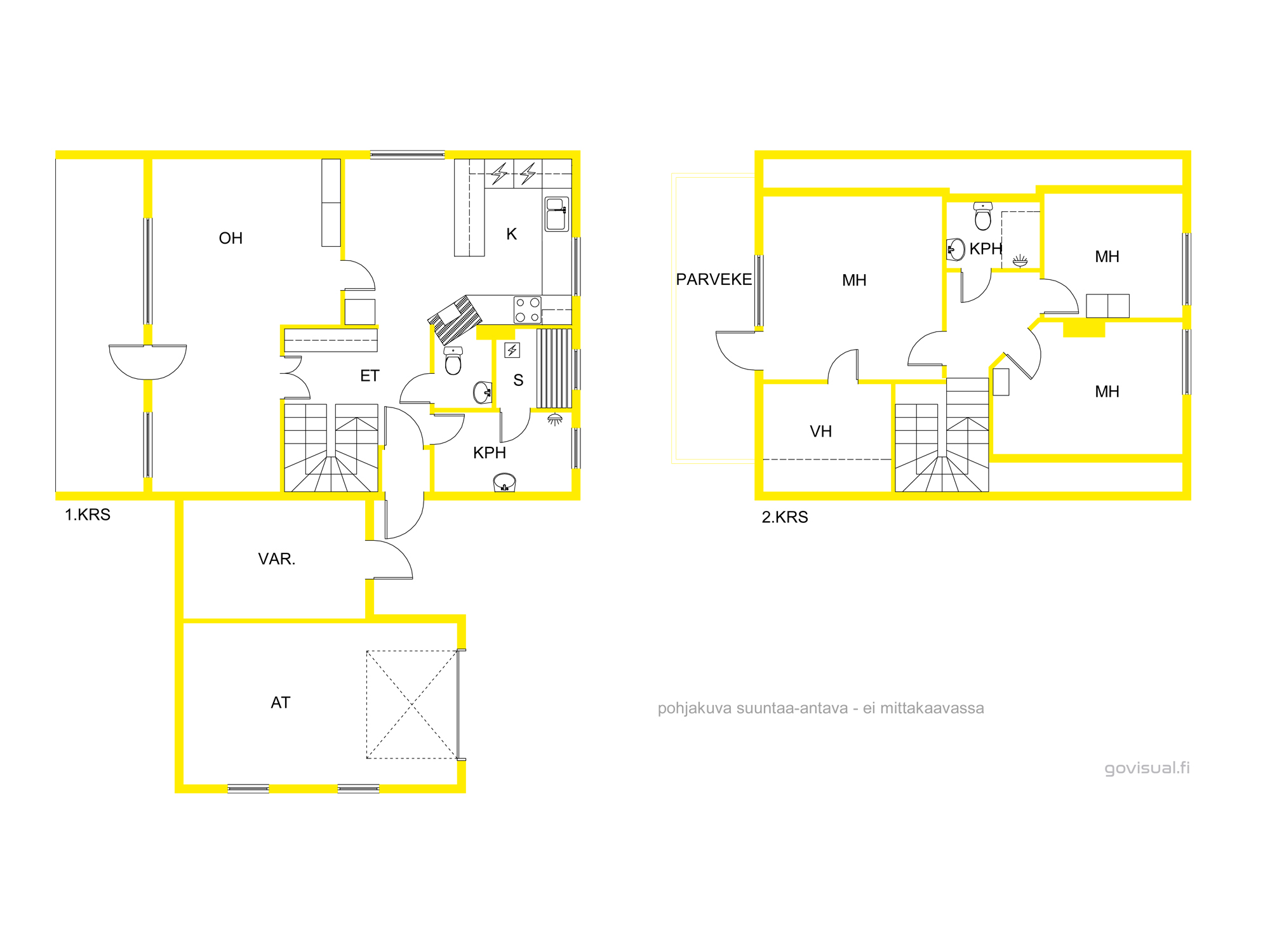
Talossa on kolme makuuhuonetta, valoisa olohuone, keittiö runsailla säilytystiloilla, alkuperäisessä kunnossa oleva pesuhuone, sauna, kaksi wc:tä, tilava vaatehuone, iso parveke, kiva terassi ja vehreä takapiha, sekä tietenkin autotalli, jonka vieressä tilava varasto.
Pintoja on laitettu vuosien varrella ja terassi rakennettu pari vuotta sitten. Vaikka pesuhuone ja keittiö ovatkin lähes alkuperäisessä kunnossaan, on tämä kohde oikeinkin kodikas ja nätti.
Oma 732 m² suojaisa vehreä kulmatontti, jossa pensaita ja muutama komia puu 🙂
Talossa on suora sähkölämmitys, ilmalämpöpummpu ja takka.
Talo kaipaa jo hieman huolenpitoa, mutta kyllä joku tästä saa aivan ihastuttavan kodin itselleen <3
Ota yhteyttä ja sovi henkilökohtainen esittelyaikasi:
Patrick Pujola, LKV, Kiat
044 4931 585
patrick.pujola@aulalkv.fi
Aula LKV Oy
Gallen-Kallelankatu 9
28100 PORI
www.aulalkv.fi
Jos haluat ammattitaitoisen ja tehokkaan välittäjän kohteellesi, ota rohkeasti yhteyttä. Myyntiä varten tehtävä arvio on aina maksuton! 
Kohdetta myy

02110 ESPOOpaakaupunkiseutu@aulalkv.fi+358 400 814 169
Esittely
Perustiedot
Ampiaisentie 10
28200 Pori
Hinta ja kustannukset
Laskettu velattomasta myyntihinnasta.
Lisätiedot
Ilmansuunta: kaakko
Saunan lauteet
Varusteet: puukiuas
Seinien pintamateriaali: paneeli
Lattian pintamateriaali: laatta
Ilmansuunta: kaakko
Lämmönjakotapa: ilmalämpöpumppu, sähköpatterilämmitys, sähköinen lattialämmitys
Asunnon tilat ja materiaalit
Tiilivuoraus
Seinien pintamateriaali: kaakeli, maalattu
Lattian pintamateriaali: parketti
Lattian pintamateriaali: parketti
Seinien pintamateriaali: tapetti, maalattu
Lattian pintamateriaali: parketti
Makuuhuone 2: MH2
Seinien pintamateriaali: tapetti, maalattu
Lattian pintamateriaali: laminaatti
Makuuhuone 3: MH3
Seinien pintamateriaali: tapetti, maalattu
Lattian pintamateriaali: laminaatti
Makuuhuoneiden määrä: 3
Seinien pintamateriaali: kaakeli
Lattian pintamateriaali: laatta
Varusteet: lattiaan asennettu WC, bidee, allaskaappi, peili
Seinien pintamateriaali: kaakeli, maalattu
Lattian pintamateriaali: muovi
WC-tila 2: Yläkerran wc
Varusteet: lattiaan asennettu WC, bidee, allaskaappi, peili
Seinien pintamateriaali: kaakeli, tapetti
Lattian pintamateriaali: muovi
9m2 varasto autotallin vieressä. Käynti ulkokautta.
Katon pintamateriaali: Tiilikate
Asunnon tontti
AOR19:
Pientalojen korttelialue.
Kullekin tontille saa rakentaa enintään 3,80 m korkeita rakennuksia. Enintään 700 m² laajuiselle tontille sallitaan vain yksi asunto. 700 m² suuremmille tonteille sallitaan lisäksi yksi asunto kutakin tontin pinta-alan 700 m² ylittävää täyttä 300 m² kohden. Asuinrakennuksen kattokaltevuuden tulee olla 1:1. Rakennuksen etäisyyden tontin rajoista tulee olla vähintään 2 m.
Autosuojarakennuksen, tai sen osan saa sijoittaa kadun ja ulkoisen rakennusrajan väliselle alueelle, kuitenkin enintään 20 m² asuntoa kohti.
Kullekin tontille on varattava vähintään yksi katettavissa oleva autopaikka sekä vähintään 20 m² leikkipihaa asuntoa kohden.
Autosuoja- ja talousrakennukset saavat olla erillisiä jolloin niiden pinta-ala saa olla enintään 25 % sallitusta kokonaiskerrosalasta ja korkeus enintään 3,20 m




































