Vuonna 1960 valmistunut ja 2006 sisältä remontoitu sekä teknisesti vuoteen 2025 mennessä peruskorjattu yksitasoinen, 785 m² kulmatontilla, oleva koti.
Rakennusoikeutta on vielä reilusti jäljellä asuinrakennuksen laajentamiseen tai vaikka erillisen autotalli/varastorakennuksen rakentamiseen.
Myyntiä hoitaa Marko Sormunen puh. 0400 814 169 tai marko.sormunen@aulalkv.fi 
Kohdetta myy

Aula LKV Elämäsi kotiin | Suomen Aula LKV Oy, PääkaupunkiseutuY-tunnus: 1846834-9Itäranta 7 B
02110 ESPOOpaakaupunkiseutu@aulalkv.fi+358 400 814 169
02110 ESPOOpaakaupunkiseutu@aulalkv.fi+358 400 814 169
Esittely
Kohteen seuraavaa esittelyajankohtaa ei ole tiedossa
Perustiedot
55051317
55051317
Helsinki, Suutarila
Seulastentie 5
00740 Helsinki
Seulastentie 5
00740 Helsinki
Omakotitalo
Ei
Omistusasunto
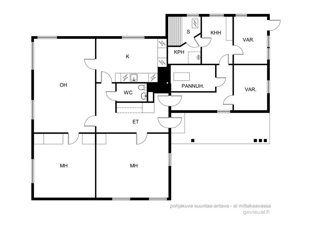
3h, k, sauna, kh, khh, wc + 2 x lämmin varasto
3
118 m²
5 m²
123 m²
Rakennuslupakuvasta välittäjän toimesta mitattu, ei siis sertifioidun pinta-alamittaajan laskema
1
1960
1960
Muu
3 kuukautta kaupasta
3 kuukautta kaupasta
Hinta ja kustannukset
348 000 €
348 000 €
2 949,15 € / m²
Laskettu velattomasta myyntihinnasta.
Laskettu velattomasta myyntihinnasta.
864 € / v
Lisätiedot
Asunnossa on sauna
Sähkökiuas, lauteet, ikkuna, seinät ja katto paneloitu, lattia laatta.
Sähkökiuas, lauteet, ikkuna, seinät ja katto paneloitu, lattia laatta.
Väylä asfaltoitu (routavaurioita), nurmikkoa, puita ja pensaita.
Kyllä
Ilmansuunta: etelä, kaakko
Laatoitettu, katon alla, sisäänkäynnin yhteydessä.
Ilmansuunta: etelä, kaakko
Laatoitettu, katon alla, sisäänkäynnin yhteydessä.
Hyvä
Katto uusittu 2025, ulkoseinien verhous ja lämmöneristys uusittu 2025, yläpohjan lämmöneristys lisätty puhallusvilla 2025, vesijohdot uusittu 2025, viemärit sukitettu 2025, lämminvesivaraaja uusittu 2025 samalla asennettu vesi-ilmalämpöpumppu, pesuhuone ja saunan lattia uusittu ja lattialämmitys asennettu 2023, ikkunoiden maalaus ulkoa ja tiivisteet vaihdettu 2025, ulko-ovet tiivistetty 2025, keittiön katto korjattu 2025, maanpinnan kallistukset korjattu 2025.
D2018
Ilmavesilämpöpumppu
Lämmönjakotapa: vesikiertoinen patterilämmitys
Lämmönjakotapa: vesikiertoinen patterilämmitys
Kunnan vesijohto
Kunnan
Antenni-TV
Asunnon tilat ja materiaalit
Pääasiallinen rakennusmateriaali: Puu
Jääkaappipakastin, keraaminen liesitaso, erillisuuni, liesituuletin (suodatin), astianpesukone 2023, mikroaaltouuni, tasot MDF, välitila laatta. Lattia laminaattia, seinät ja katto maalattu. Ikkunassa sälekaihtimet.
Lattiat laminaattia, seinät maalattu, katto maalattu haltex-levy. Ikkunoissa sälekaihtimet.
Makuuhuone 1: Lattia laminaattia, seinät maalattu, katto maalattu haltex-levy, liukuovikaapisto. Ikkunoissa sälekaihtimet.
Makuuhuone 2: Lattia laminaattia, seinät maalattu, katto maalattu haltex-levy., ikkunassa sälekaihtimet.
Makuuhuoneiden määrä: 2
Makuuhuone 2: Lattia laminaattia, seinät maalattu, katto maalattu haltex-levy., ikkunassa sälekaihtimet.
Makuuhuoneiden määrä: 2
Suihku, laatoitettu, katto paneloitu. Sähköinen lattialämmitys.
Peilikaappi, allaskaappi, wc-istuin, bidé, lattia laatta, seinät ja katto maalattu.
Lattia laminaattia, seinät maalattu, katto maalattua haltex-levyä, liukuovikaapisto.
Kaapistot, pesukoneliitäntä, seinät ja katto laatoitettu, katto paneloitu, ikkuna.
Kaksi varastoa vierekkäin, yhteensä noin 13 m².
Tekninen tila: Entinen pannuhuone nyt tekninen tila, pinnat betonia.
Katto: Harjakatto
Katon pintamateriaali: Peltikate
Uusittu 2025
Katon pintamateriaali: Peltikate
Uusittu 2025
Asunnon tontti
91-40-16-6
785 m²
Tasamaa
Oma
Ao II / 500, e=0,25
Asemakaava
0,25
Kuntotarkastuksessa 3.9.2025 havaittiin seuraavat viat ja puutteet: Loppukatselmuksen merkintää ei ole rakennusvalvonnan dokumenteissa. Kallistuma. Hulevedet on ohjattu jätevesijärjestelmään. Ikkunoiden vesipeltien tiiveys ja asennus puuttuville osille.
Muut lisätiedot
Länsi-lounas, pohjois-luode, itä-koillinen, etelä-kaakko.
Sähköliittymä, viemäriliittymä, vesiliittymä






























