🏡💼 – monipuolinen kiinteistökokonaisuus Reposaaren sydämessä, jossa yhdistyvät majatalo, ravintola, kaksi erillistä asuntoa ja iso korjaamohalli omalla reilun 1800 m² tontilla!
Majatalossa on 32 petipaikkaa ja on viime aikoina toiminut reissuhommia tekevien majoituspaikkana. Yläkerran yksiö on tällä hetkellä vuokrattuna pidempiaikaiselle asukkaalle ja ravintolassa toimii vuokralla ravintoloitsija, joten kiinteistö tarjoaa heti vuokratuloja.
Monien mahdollisuuksien kokonaisuus:
– voit esim. pyörittää majataloa ja/tai ravintolaa, laittaa asunnot vuokralle ja käyttää hallia yritys- tai harrastustarkoituksiin.
– tai vuokraat ravintolan, huoneistot ja hallin, hommaat reissuhommia tekevän porukan majataloon pidemmällä sopimuksella ja palkkaat paikallisen kehutun Kissaniitty Oy:n huolehtimaan majatalon siisteydestä.
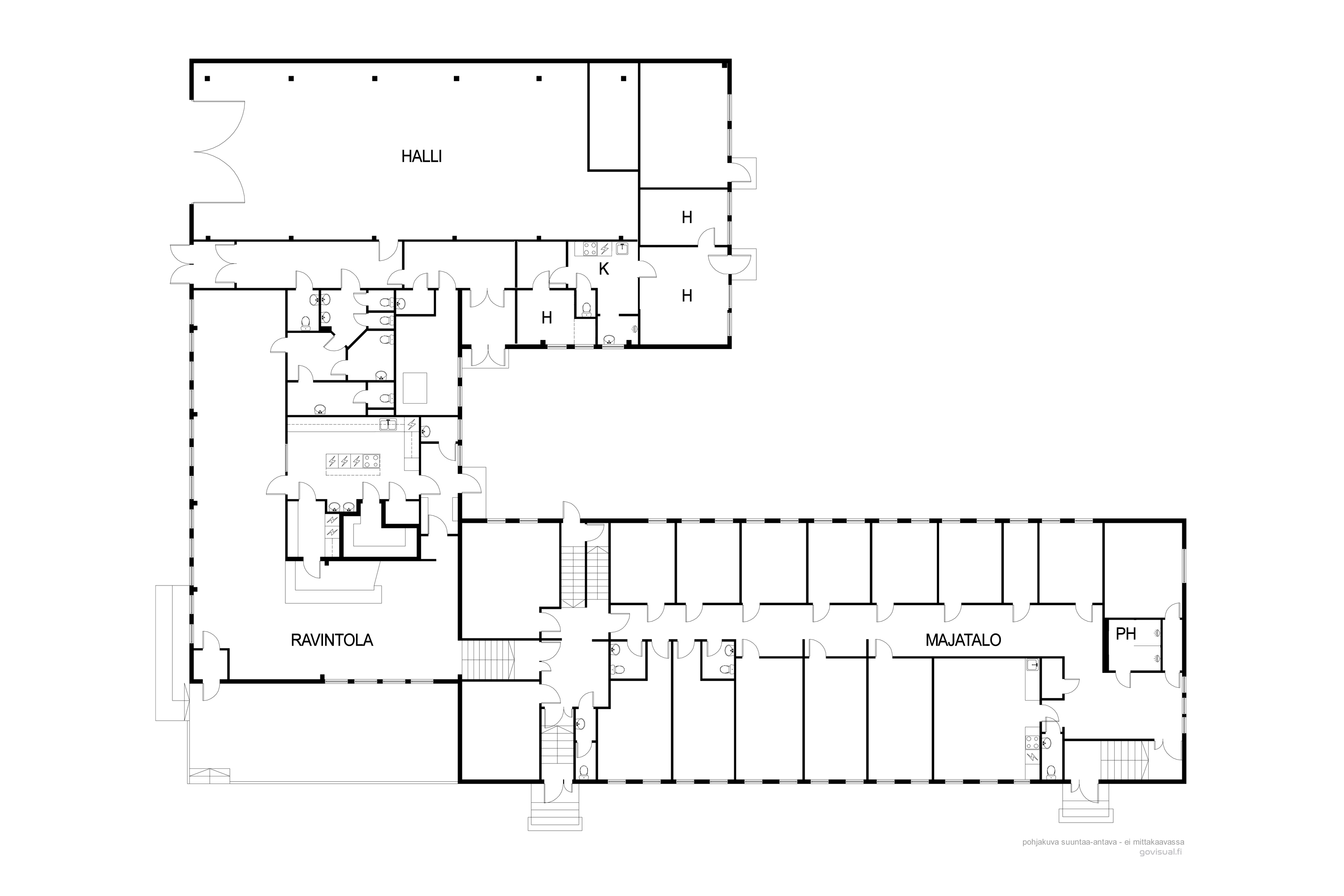
Majatalon puoli (rak. 1948)
– Lämmitys kaukolämmöllä, 90% kv putkista ja radiaattorit uusittu 2022.
– Yläkerran yksiö remontoitu 2022, rakennuslupa kattoterassille – aamuaurinkoon – on olemassa.
– Katolla aurinkopaneelit 17 kW, jotka kattavat lähes koko kesäajan kulutuksen – mahdollisuus laajentaa jopa 30 kW:iin.
Laajennusosa & ravintola (rak. 1969)
– Ravintolatila remontoitu 2022: pinnat, putket, sähköt ja ilmanvaihto päivitetty nykyvaatimusten tasolle.
– Käytössä kaksi ilmalämpöpumppua, oma lämminvesivaraaja . Mahdollisuus kytkeä ravintola kaukolämpöön.
– Sisäpihan asunto (n. 55 m²) lattialämmityksellä ja ilmalämpöpumpulla, kosteat tilat uusittu alle 10 vuotta sitten.
Korjaamohalli
– Soveltuu erinomaisesti monenlaiseen käyttöön: kaluston säilytykseen, korjaamotoimintaan, harrastuksiin tai yritykselle.
Ota yhteyttä ja sovi oma esittelyaikasi:
Patrick Pujola, LKV, KiAT
📞 044 4931 585
✉️ patrick.pujola@aulalkv.fi
Aula LKV Oy
Gallen-Kallelankatu 9
28100 PORI
🌐 www.aulalkv.fi 
Kohdetta myy

02110 ESPOOpaakaupunkiseutu@aulalkv.fi+358 400 814 169
Esittely
Perustiedot
Satamapuisto 2
28900 Pori
Hinta ja kustannukset
- Vesimaksut n. 100 €/kk
- Jätemaksut n. 100 €/kk
- Kaukolämpö: 07/2023–07/2024: 5066,09 e (39 448 kWh).
- Kaukolämpö: 07/2024–07/2025: 4708,53 e (28 740 kWh).
- Sähkö 2024: 01-12: 3 560,46e.
- Sähkö 2025 01- 06: 1 859,94e
Lisätiedot
Tontin lisätiedot
K Liike- ja toimistorakennusten korttelialue.
- Alun perin konepajan toimistorakennus
- Rakenteet: betonisokkeli, betonivälipohja, puurunkoinen, rapattu ulkovuori
- Lattiat: kivi / puu
- Katto: n. 12 vuotta vanha, aluskate löytyy
- Aurinkosähkö: katolla 17 kW paneelit, kattaa lähes koko kesäajan kulutuksen. Invertteri mahdollistaa jopa 30 kW paneelit – laajennus suunnitteilla myös matalan osan katolle
- Lämmitys: kaukolämpö, 90 % lämmitysputkista uusittu ja uudet radiaattorit (2022)
- Viemäröinti: runkoviemäri rautaa (näkyvissä kellarissa), kerroksista muoviputket liitetty näkyvästi
Yläkerran yksiö:
- Täysremontoitu 2022
- Pinnassa kulkevat vesijohdot ja viemärit liitetty vanhaan linjaan asunnon ulkopuolella (näkyvissä)
- Uusi erillinen sähkökeskus ja johdot, ei takamittausta
- Terassilupa 4 × 4 m (aamuaurinkoon)
- Lämmitys: lattialämmitys wc:ssä, muualla ilmalämpöpumppu (ILP)
Laajennusosa (rak. 1969)
- Käytetty aiemmin toimistona, ruokalana ja hallina
Ravintolatila:
- Täysremontoitu 2022: pinnat, käyttövesiputket, sähköt (keskukset + johdot)
- Rautainen runkoviemäri kuvattu 2022, ravintolan jätevedet liitetty muovilla linjaan
- Tuplavesijärjestelmä: oma lämminvesivaraaja (sähkö) + linja kaukolämmöstä
- Ilmanvaihto päivitetty: puhaltimet, kattoläpiviennit ja osa iv-putkista uusittu
- Järjestelmän teho mitattu vastaamaan nykyvaatimuksia
- Käyttöönottotarkastus suoritettu 2022
- 2 × ILP + mahdollisuus vetää kaukolämpö majatalon puolelta
- Katto: peltiä aluskatteella, n. 12 v vanha (ed. omistaja)
- Sisäpihan asunto (n. 55 m²): lattialämmitys + ILP, kosteat tilat uusittu alle 10 vuotta sitten
Mahdollisuus lisätä takamittaus asuntoihin ja ravintolaan (eri alakeskuksista vedetty sähkö)




















































