NAKKILAN VIIKKALASSA HYVÄKUNTOINEN KOLMEN MAKUUHUONEEN TALO ETSII UUSIA ASUKKAITA!
Vuonna 1988 rakennettu tiiliverhottu talo sijaitsee omalla 1280 neliön tontilla, upean kuusiaidan suojassa.
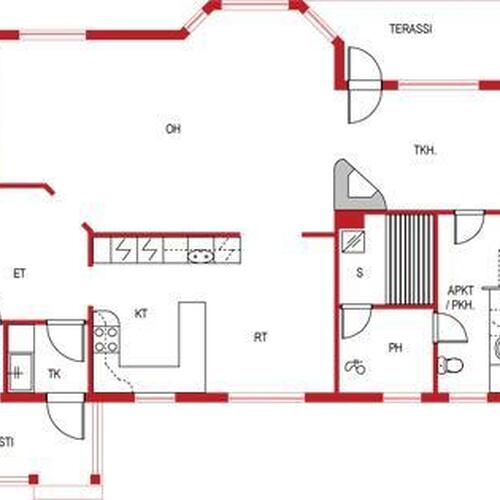
Talon kolme isoa makuuhuonetta tarjoaa tilaa isommallekin porukalle.
Upein erkkeri-ikkunoin varustettu olohuone, jonka vieressä varaavalla takalla varustettu takkahuone.
Kaunis keittiö, joka remontoitu hetki sitten, vieressä iso tila ruokapöydälle.
Ikkunallisessa kodinhoitohuoneessa kaapistoa, paikka pyykinpesukoneelle sekä talon toinen wc. Vieressä ikkunallinen, laatoitettu kylpyhuone sekä puulämmitteinen sauna. Eteistilassa erillinen kalustettu wc.
Talon päädyssä on tilava autotalli, jonka takaosassa varasto.
Pihassa lisäksi autotalli, jonka takana varasto.
Huolella pidetty talo – sinun uusi kotisi?
Kiinteistön esittelyä ja myyntiä hoitaa
Helena Alppi
040 591 8578
helena.alppi@aulalkv.fi
********************
OMA ASUNTO MYYMÄTTÄ? – MAKSUTON ARVIO ASUNNOSTASI VAIN KLIKKAUKSEN PÄÄSSÄ:
040 591 8578, helena.alppi@aulalkv.fi
Liity sinäkin tyytyväisten asiakkaiden ja onnellisten muuttojen joukkoon!
******************** 
Kohdetta myy

02110 ESPOOpaakaupunkiseutu@aulalkv.fi+358 400 814 169
Esittely
Perustiedot
29250 Nakkila
Hinta ja kustannukset
Laskettu velattomasta myyntihinnasta.
Lisätiedot
Saunassa puulämmitteinen kiuas, seinillä paneeli/maalattu betoni, laattalattia
Varusteet: puukiuas
Seinien pintamateriaali: paneeli
Lattian pintamateriaali: laatta
Lämmönjakotapa: ilmalämpöpumppu, sähköpatterilämmitys
Asunnon tilat ja materiaalit
Tiiliverhous
Varusteet: takka
Seinien pintamateriaali: tapetti, maalattu
Lattian pintamateriaali: laminaatti
Varaava takka, seinillä maali, laminaattilattia
Seinien pintamateriaali: tapetti, maalattu
Lattian pintamateriaali: laminaatti
Makuuhuoneiden määrä: 3
Seinien pintamateriaali: tapetti
Lattian pintamateriaali: laatta
Varusteet: lattialämmitys
Seinien pintamateriaali: tapetti, maalattu
Lattian pintamateriaali: laatta
Autotallin vieressä varasto
Katon pintamateriaali: Peltikate
Asunnon tontti
Lisätietoa rakennuksesta: iso autotallirakennus, jonka takana varasto

















































